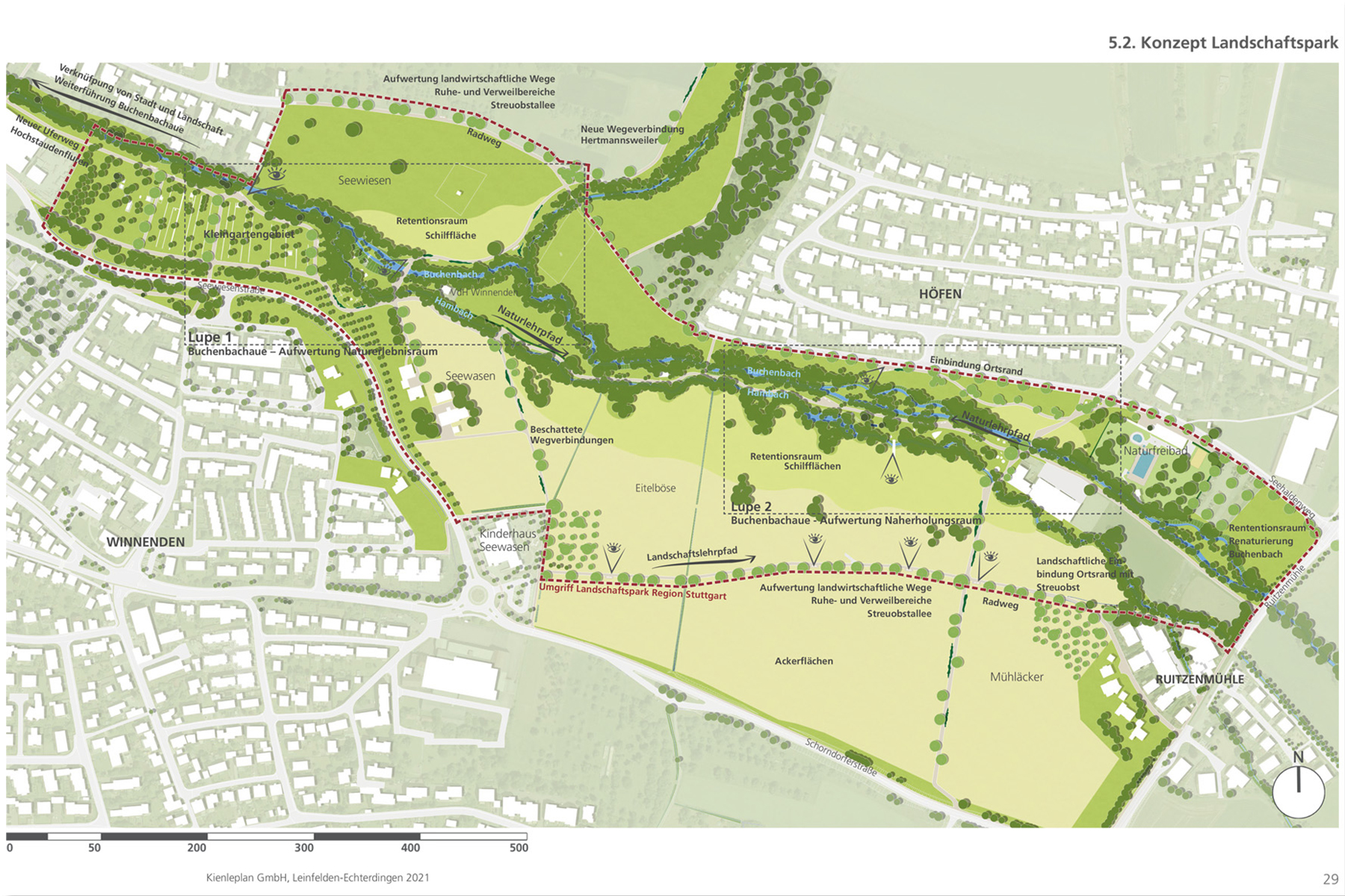
Die Stadt Winnenden ist umgeben von den Landschaftsparks Neckar, Murr-/ Bottwartal, Rems und Limes. Winnenden will mit seiner Bewerbung für einen `Landschaftspark Buchenbachaue´, als bisher fehlender Baustein innerhalb des Landschaftsparkkonzeptes für die Metropolregion Stuttgart, einen wichtigen Beitrag leisten, um diese Lücke zu schließen. Gleichzeitig soll der `Landschaftspark Buchenbachaue´ zum Impulsgeber einer zukunftsfähigen Stadtentwicklung Winnendens werden.
Entsprechend der Ziele der Landschaftsparkkonzeptes möchte Winnenden daher seinen Natur- und Landschaftsraum Buchenbachaue erhalten, aktiv gestalten, aufwerten und qualitativ weiterentwickeln. Dabei stehen die Sicherung und Weiterqualifizierung der wertvollen Natur- und Landschaftsräume der Buchenbachaue, die Gewässerentwicklung des Buchenbachs selbst, der Erhalt der umgebenden Kulturlandschaft, die langfristige Aufwertung zu einem Naherholungsraum genauso im Fokus, wie die anstehenden Themen der Anpassung an die Folgen des Klimawandels durch Starkregenereignisse und die immer häufiger vorkommenden Hitzesommer. Die zukünftig attraktive grüne und blaue Infrastruktur nimmt damit direkten Einfluss auf die Wohn- und Lebensqualität. Das Projekt soll eine qualitätvolle Aufwertung und Vernetzung zu einem Biotopverbund darstellen, zugleich die Naherholungsfunktion der Bevölkerung sicherstellen.
Für die Bewerbung sind Projektideen für den `Landschaftspark Buchenbachaue´ entstanden, in die Ideen und Beiträge aus einer Online-Bürgerbeteiligung, aus dem Beteiligungsangebot auf der Homepage der Stadt und bei einer Begehung mit interessierten Bürgern vor Ort eingeflossen sind.
Bearbeitung 2021
Bürgerbeteiligung Online-Veranstaltungen und örtliche Begehungen
Erstellung Förderantrag Verband Region Stuttgart
Förderzusage Regionale Kofinanzierung des Verband Region Stuttgart 2022
Weitere Projekte



